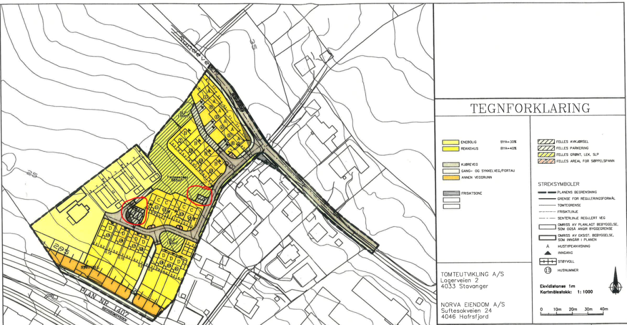
Gjest 0ed84...83c Skrevet 23. januar 2024 Skrevet 23. januar 2024 Jeg bor i et boligfelt av rekkehus som er selveier leiligheter. Det er et kjent problem i vårt boligfelt at "gjesteparkering" blir brukt av beboere når det står skilt at det er reservert besøkende. Disse skiltene er noe en tidligere beboer fikk produsert på jobb og satt ut. Jeg er ikke sikker på om det er kommunen. velforeningen eller en grunneier som eier fellesområder. I kommune papirer som jeg finner på nett er det regulert som felles område. Vil det si at det er konkurranseprinsippet som gjelder, eller kan velforeningen bestemme over hva områdene skal brukes til? Det har vært snakk om at velforeningen ønsker å bruke et privat parkeringsselskap som regelmessig kontrollerer p.plassene. Hva er regler rundt dette? Jeg har ikke hørt om dette tidligere. Så mitt spørsmål har sikkert flere svar. Hvor mye kan velforeningen bestemme rundt parkeringsplasser i et boligfelt? Hvor kan jeg finne ut om hva parkeringsplassene er regulert til? Har kommunen slike dokumenter åpen til allmenheten hvis jeg etter spør dette? Se bilde, det som er markert med rød ring rundt er p. plassene det er snakk om her. Takker for svar på forhånd. Anonymous poster hash: 0ed84...83c
Gjest 50924...aac Skrevet 24. januar 2024 Skrevet 24. januar 2024 Gjest 0ed84...83c skrev (11 timer siden): Jeg bor i et boligfelt av rekkehus som er selveier leiligheter. Det er et kjent problem i vårt boligfelt at "gjesteparkering" blir brukt av beboere når det står skilt at det er reservert besøkende. Disse skiltene er noe en tidligere beboer fikk produsert på jobb og satt ut. Jeg er ikke sikker på om det er kommunen. velforeningen eller en grunneier som eier fellesområder. I kommune papirer som jeg finner på nett er det regulert som felles område. Vil det si at det er konkurranseprinsippet som gjelder, eller kan velforeningen bestemme over hva områdene skal brukes til? Det har vært snakk om at velforeningen ønsker å bruke et privat parkeringsselskap som regelmessig kontrollerer p.plassene. Hva er regler rundt dette? Jeg har ikke hørt om dette tidligere. Så mitt spørsmål har sikkert flere svar. Hvor mye kan velforeningen bestemme rundt parkeringsplasser i et boligfelt? Hvor kan jeg finne ut om hva parkeringsplassene er regulert til? Har kommunen slike dokumenter åpen til allmenheten hvis jeg etter spør dette? Se bilde, det som er markert med rød ring rundt er p. plassene det er snakk om her. Takker for svar på forhånd. Anonymous poster hash: 0ed84...83c Hva med å spørre vellet om de har et vedtak på det? Anonymous poster hash: 50924...aac
Gjest 39b9e...797 Skrevet 24. januar 2024 Skrevet 24. januar 2024 Det er som regel ett fellesskap som har ansvaret rundt slikt, og ikke kommunen når det er privat område med privat vei. Hvis det er slik som du sier at beboere bruker det som plass nr 2, og det er problematisk for gjester å få parkert, eller hvis området er i nærhet til offentlig transport, så kan det også være de som bruker det som har funnet seg fine gratis plasser å stå på. Hos en kunde her i Oslo som jeg er ofte innom, borettslag, som ligger rett ved der det går mye busser, så har de løsning med gjestekort som må ligge i bilen. De ønsker å gå vekk fra dette, og sette opp betal parkering i stedet, da det er flere beboere som bruker plassene for bil nr 2. Det er som regel ledig parkering på stedet på vanlige uke dager. Men ved betaling så får også borettslaget en inntekt som hjelper å vedlikeholde området også. Anonymous poster hash: 39b9e...797
majer Skrevet 24. januar 2024 Skrevet 24. januar 2024 Her jeg bor leier halvparten ut leilighetene sine. De bryr seg ikke om hva som skjer og da blir det mye tull. Et sted jeg bodde tidligere ble gjesteparkeringene endret til betalikgsparkeringer pga varebiler som tok plass
Marzo Skrevet 24. januar 2024 Skrevet 24. januar 2024 En løsning kan være å henge opp skilt med maks 2-4 timer parkering.
The Avatar Skrevet 24. januar 2024 Skrevet 24. januar 2024 Basert på https://vegkart.atlas.vegvesen.no så ser det ut som at sjølve vegen er kommunal, men at dei innringa parkeringsplassane er private. Grunneigaren kan fastsette reglar for bruken av sin eigedom, når det er felleseige så blir denne råderetten ivaretatt av eit sameige eller velforeining på vegne av alle grunneigarane. Ei velforeining skal ha eit styre og ei vedtekt, i vedtektene vil du finne kva velforeininga har fått fullmakt til å ivareta. Vanlege ordensreglar inkludert parkeringsreglar vil vanlegvis ligge innafor det styret i velforeininga kan bestemme, men ikkje om det alt er fastsatt parkeringsreglar gjennom vedtektene for då må vedtektene endrast fyrst, det krever eit 2/3 fleirtal på generalforsamlinga. Så med mindre anna er bestemt i vedtekter så kan styret i velforeininga peike ut disse parkeringsplassane som gjesteparkering. Dersom plassane også blir skilta i samsvar med parkeringsforskrifta så kan det ileggast parkeringsgebyr for feilparkerte bilar. Parkeringskiltet må mellom anna ha tydeleg informasjon om vilkåra for å parkere som at det er parkering for besøkande og eventuell avgrensing på kor lenge ein får stå parkert, kven som er kontaktperson, og informasjon om gebyr og klageadgang. Eit generelt skilt som det berre står gjesteparkering på vil ikkje være tilstrekkeleg for å kunne følgje opp med parkeringsbøter. Blir dette gjort så kan styret i velforeininga ilegge kontrollsanksjon på 660 kr for feilparkeringar. I praksis vil mange velforeingar og sameiger leige inn eit parkeringsselskap til å gjere jobben, sidan det kan være både arbeidskrevjande og ubehageleg å være parkeringsvakt i eige nabolag. Dette vil sjølvsagt koste nokre kroner som då blir lagt inn som driftskostnadar i velforeininga som igjen må dekkast inn gjennom større innbetalingar. Det som vanlegvis i slike saker blir det store diskusjonstemaet er eksakt korleis parkeringsreglane skal være og korleis det skal handsamast. Parkeringskort er ofte ei enkel løysing å innføre men vil typisk være ei plage for bebuarane som då i praksis må gå bort til gjesteparkeringa for å ta imot besøket sitt og gi dei parkeringskortet slik at gjesten får parkere, og tilsvarande må ein følge besøket sitt heilt til bilen for å hente parkeringskortet igjen. Tilsvarande vil ei tidsavgrensing være relativt enkelt å administrere, men gir igjen utfordringar ved til dømes overnattingsbesøk om besøkstida er avgrensa til berre nokre timar. Rådet som er enkelt å gi, men vanskeleg å etterleve er at dykk som bur i nabolaget bør informere om problemstillinga og gjerne ta det med dei som eventuelt misbrukar gjesteparkeringa som parkeringsplass til bil nummer 2 om at dei må finne ei anna parkeringsløysing før det blir satt inn formelle parkeringsreglar og parkeringsbøter. Ei slik regulering sikrar tilgjengelege gjesteparkeringar men det blir både dyrt og plagsomt for alle bebuarane om dykk må til med parkeringsvakter. Så om det er sjans å ordne dette på ein minneleg måte så er dette til det beste for alle partar, også dei som i dag nyttar gjesteparkeringa og som i framtida kjem til å få bøter. Når det fyrst er fastsatt parkeringsreglar så er dette eit firkanta system med lite fleksibilitet. 1 1 1
Trulss Skrevet 24. januar 2024 Skrevet 24. januar 2024 Et kommunalt vedtak om fellesparkering for området kan vel ikke nødvendigvis styres av den lokale velforeningen. Grunneier kan ha inngått avtale med kommunen om hva plassen skal brukes til, og endre bruken ligger nok ikke innenfor velforeningens område.
Dubious Skrevet 24. januar 2024 Skrevet 24. januar 2024 Før det kan skives bøter så må det opp et skilt som beskriver hva som er tillatt. Holder ikke at det står at det er for besøkende.
Rune_says Skrevet 24. januar 2024 Skrevet 24. januar 2024 Betalparkering, evt i kombinason med litt gratis tid er vel det de fleste ender opp med om vedtekter ikke respekteres. Det må da skiltes godt. Hvis det er et visst antall P-plasser, kan det være mulig å få til null-avtaler (dvs koster vellet null) der P-selskap kun tjener på ilagte gebyr.
Dubious Skrevet 24. januar 2024 Skrevet 24. januar 2024 Rune_says skrev (15 minutter siden): Hvis det er et visst antall P-plasser, kan det være mulig å få til null-avtaler (dvs koster vellet null) der P-selskap kun tjener på ilagte gebyr. Fordi det er så lurt å gi de en grunn til å bøtelegge for den minste grunn. Slike avtaler fører til krangling. 1
Mercruiser Skrevet 24. januar 2024 Skrevet 24. januar 2024 En velforening har i utgangspunktet ingen juridisk myndighet. Det er også frivillig å være medlem i velforeningen, i motsetning til boretts- og sameielag. Men når det er sagt har velforeningen vedtekter som er vedtatt på velforeningens stiftelsesmøte, dvs. beboerne i fellesskap. Dersom velforeningen er tinglyst eier av fellesområdene, vil velforeningen ha myndighet til å bestemme hvilke regler som skal gjelde der - innenfor rammen av vedtektene. Det er imidlertid ikke slik at velforeningens styre alene nødvendigvis kan vedta hva de måtte ønske. Det er velforeningens årsmøte (altså dere beboere i fellesskap) som setter rammer og føringer for hvilken myndighet styret har blitt delegert. Du som beboer kan følgelig adressere problemstillingen på årsmøtet, som er velforeningens øverste organ. Dersom flertallet av beboerne ikke ønsker gjennomføring av velforeningens (les: styrets) planer, vil planene heller ikke kunne gjennomføres. 2
Anbefalte innlegg
Opprett en konto eller logg inn for å kommentere
Du må være et medlem for å kunne skrive en kommentar
Opprett konto
Det er enkelt å melde seg inn for å starte en ny konto!
Start en kontoLogg inn
Har du allerede en konto? Logg inn her.
Logg inn nå