Gå til innhold
Spørsmål om hus eller oppussing? Still spørsmål her! ×

Hjelp til å lokalisere bærevegg


Anbefalte innlegg

Skrevet

Hei

Lurte på om det var noen som kunne hjelpe meg og tyde ut en eldre byggetegning
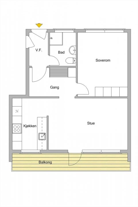
Fant en eldre byggetegning fra byggeår, er fra 1971
har markert hvilken seksjon spørsmålet mitt gjelder med røde tjukke linjer


Har tegnet som en femåring, og tegningen er ganske utydelig, men håper noen kan hjelpe meg fordet :))


Lurer på de 2 veggene jeg har markert med tynne røde linjer er bærende? Ser at de er mye tynnere en der jeg har markert med svart ring, de 2 veggene jeg har markert i rødt er rundt 10cm.


Takk på forhånd!

480_1176835499.jpg

Jernbanevegen 10.png

Videoannonse
Annonse
Skrevet

Når du sier den veggen markert sort er tykkere. Det kan jo være fordi dette huset er delt i to boenheter? Det er jo et standard hus fra 80 tallet.  Enig i det Clayman sier, det er nok den røde som går horisontalt på tegningen som sannsynligvis er bærende, men her må man undersøke nærmere. Se i etasjen under om det er noen vegger som går likt som i etasjen over, er det noen bjelker som er kledd inn eller synlig?

Opprett en konto eller logg inn for å kommentere

Du må være et medlem for å kunne skrive en kommentar

Opprett konto

Det er enkelt å melde seg inn for å starte en ny konto!

Start en konto

Logg inn

Har du allerede en konto? Logg inn her.

Logg inn nå
  • Hvem er aktive   0 medlemmer

    • Ingen innloggede medlemmer aktive
×
×
  • Opprett ny...