Gå til innhold
Spørsmål om hus eller oppussing? Still spørsmål her! ×

Dele opp stue og kjøkken med "luftig vegg"


Anbefalte innlegg

Skrevet

Hei,

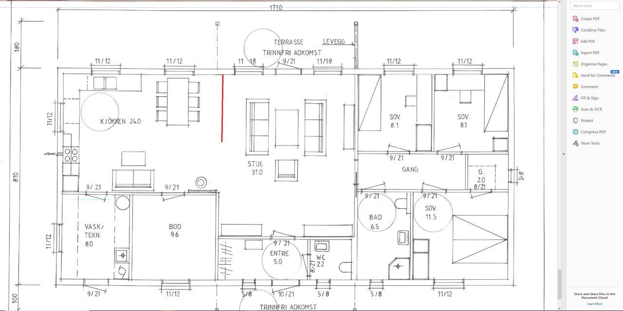
Er i gang med planlegging av nytt hus. Alt dette er nytt for meg, førstegang ute på boligmarkedet så har vært mye å sette seg inn i. Har fått tegninger fra arkitekt som jeg er fornøyd med. Enkelt hus med alt på en flate, ikke store greiene men rundt en 130 kvadrat er mer enn nok for meg å holde styr på.  Har så vidt begynt å tenke på hvordan jeg skal innrede alt. Huset har en veldig åpen løsning, så stue og kjøkken er helt åpent, jeg har så smått begynt og tenkt på hvordan møbler skal stå i stuen. Jeg syns personlig det er "penest" med en sofa inntil en "vegg" og ikke frittstående som det er skissert.  Dog så syns jeg ikke det blir pent med en helt tett vegg der, men tante snakket om at en DIY bokhylle "vegg" kanskje hadde passet bedre inn som "skillevegg" da har man en litt lufting åpning. Jeg syns jo lyd og bilde er ett interresant tema, så en "luftig vegg" hvor man kunne ha hatt ett par høyttalere i ett surround oppsett hadde vært fint, nå har jeg luksusen med at ingen vegger er oppe enda, så alt av nødvendige kabler kan bli lagt klart på forhånd.  Finner jeg ingen pen løsning på det, så får det nesten bli lydplanke og helt åpent.

 

Setter pris på tilbakemeldinger med tankespill. Tomten er kun planert, så er endel timer igjen før man begynner med å innrede, men syns det er greit å være forberedt da jeg håper det meste er ferdig innen året er slutt. 

 

utkast.png

  • 2 uker senere...
Videoannonse
Annonse
Skrevet

Nå veit jeg ikke stilen på huset, men kanskje er en spilevegg som romskiller en idé her. Mange måter å gjøre det på, enten om du gjør det enkelt, integrerer hyller eller ei. Spørs vel hvor luftig du vil ha det.

Opprett en konto eller logg inn for å kommentere

Du må være et medlem for å kunne skrive en kommentar

Opprett konto

Det er enkelt å melde seg inn for å starte en ny konto!

Start en konto

Logg inn

Har du allerede en konto? Logg inn her.

Logg inn nå
  • Hvem er aktive   0 medlemmer

    • Ingen innloggede medlemmer aktive
×
×
  • Opprett ny...