Gå til innhold
Spørsmål om hus eller oppussing? Still spørsmål her! ×

Plassering av søppelcontainer, hvilke rettigheter har jeg?


Anbefalte innlegg

Skrevet

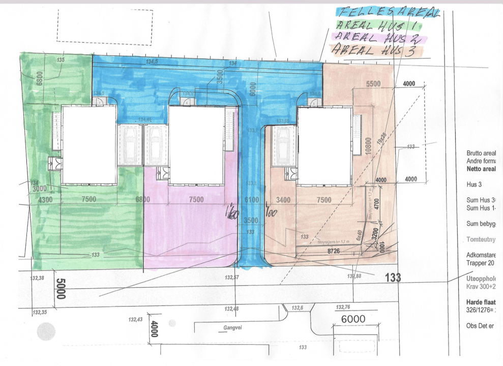
Det gjelder søppelcontainer og tre hus i et tomte, det er allerede fordelt i tre området samt fellesareal. Sjekk vedlegg ang fordelingen, jeg bor i huset med grønt område. De setter opp søppelcontainer ved oppkjørselen, dog på hver side. Mens de vil ikke la meg plassere mine der. De sier at jeg må lage en port med plass til søppelcontainer i hagen vår. Jeg opplever det som tungvint, at vi i huset må gå helt rundt for å kaste søplene våre. Det er uendelig mye bedre å ha containerne ved oppkjørselen. Har jeg noen rettigheter ang det i loven?

 
Videre kan jeg fortelle at naboen, altså til høyre (oransje), pleier å parkere bilen sin foran garasjen (De har ofte to-tre biler). Dvs i fellesområdet, som gjør at jeg får ikke kjøre til høyre dermed rygge til plassen min. Det er et slags kort jeg kan ha mot ham, men jeg ønsker ikke være vanskelig. Det er greit å vite først hvilke rettigheter jeg har.
 

Skjermbilde 2022-06-14 kl. 11.41.30.png

Videoannonse
Annonse
Skrevet

Det er et fellesareale. Du trenger med andre ord ikke spørre de om lov å plassere ut dine containere der.

Om du f.eks setter dine i grensen mellom felles(blått) og din tomt (grønt) har de ingenting de skulle ha sagt på det.

 

Dersom personen i oransje hus tar opp all parkeringsplass på fellesarealet må vedkommende gå i seg selv og tenke at dette er ikke hans areale selv om det går ved siden av huset hans. Isåfall får han lage parkeringsplass på det oransje området.

Opprett en konto eller logg inn for å kommentere

Du må være et medlem for å kunne skrive en kommentar

Opprett konto

Det er enkelt å melde seg inn for å starte en ny konto!

Start en konto

Logg inn

Har du allerede en konto? Logg inn her.

Logg inn nå
  • Hvem er aktive   0 medlemmer

    • Ingen innloggede medlemmer aktive
×
×
  • Opprett ny...